祝賀德展集團中標中共北京市海淀區委宣傳部海淀通史展展臺搭建和多媒體制作政府采購項目 作者:德展編輯 發布時間:2016-06-02
項目名稱:中共北京市海淀區委宣傳部海淀通史展展臺搭建和多媒體制作政府采購項目(包一展臺搭建)
招標編號:ZTGH--2016ZCFW--04025
招標單位:中共北京市海淀區委宣傳部
招標代理機構:北京中天國宏招標代理有限公司
中標單位:德展(北京)國際展覽有限公司
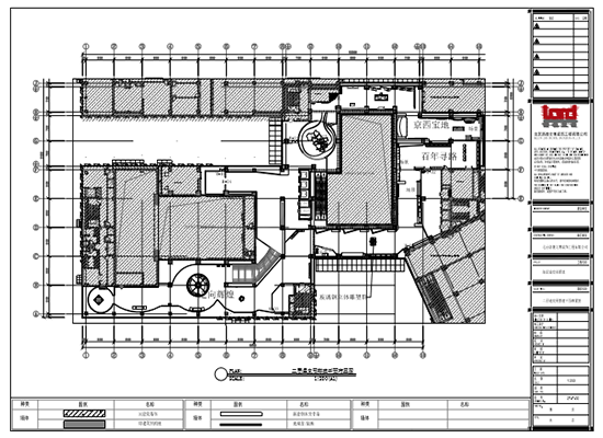
項目地址:海淀北部文化中心
項目工期:2016年5月25日—6月30日
項目面積:2700平方米
海淀通史陳列展搭建項目是德展今年接手的較大項目,公司上手就高度重視,從拿到標書一刻起我們就組建了專門項目組和對接團隊,全身心投入到項目的立項研究、現場踏勘、資質評審、措施完善、標書制作、現場投標等工作,經過一個月的努力,我們終以專業的技術方案、完備的施工措施保證、優良的成本控制和配套的增值服務贏得了客戶的信任,德展集團榮耀地收到了中標通知書,這是德展集團在永久展陳項目發展上又一濃墨重彩的一筆。
海淀通史陳列展要通過海淀古代歷史文明和現代科技文明交相輝映,彰顯海淀區從古至今在中國歷史乃至世界舞臺上的重要地位,藉此打造海淀文化展示中心軟實力,打造國際友人認知海淀、了解中國的示范窗口,打造公眾開展文化溝通的平臺,成為海淀區政府開展文化教育活動的宣傳基地,成為海淀歷史、科技創新成果內容的專家交流園地。
工程現已履行完合同,按開工通知單日期準時開工。德展集團在海淀區委宣傳部關懷支持下、在設計公司的指導配合下、在兄弟公司的友情支援下,有決心、有信心、更有能力按期完成工程項目施工,融智融力把展廳完美呈現給世人,打造又一高品質智慧城市工程,感恩客戶對我們的信任!
![]() |
|
![]() |
|
|
|
|
![]() |
|
![]() |
|
|
|
|
![]() |
|
![]() |
|
|
|
|
![]() |
|
![]() |
|
|
|
|
![]() |
|
![]() |
|
|
|
|
![]() |
|
![]() |
![]() |
|
![]() |
|
|
|
|
![]() |
|
![]() |
|
|
|
|
![]() |
|
![]() |
|
|
|
|
|
|
|
|
|
|
|
|
|
|
|
|
|
|
|
|
|
|
|
|
|
|
|
|
|
|
|
|
|
|
|
|
|
|
|
|
|
|
|
|
|
|
|
|
|
|
|
|
|
|
|
|


















